top of page
.png)




1/5
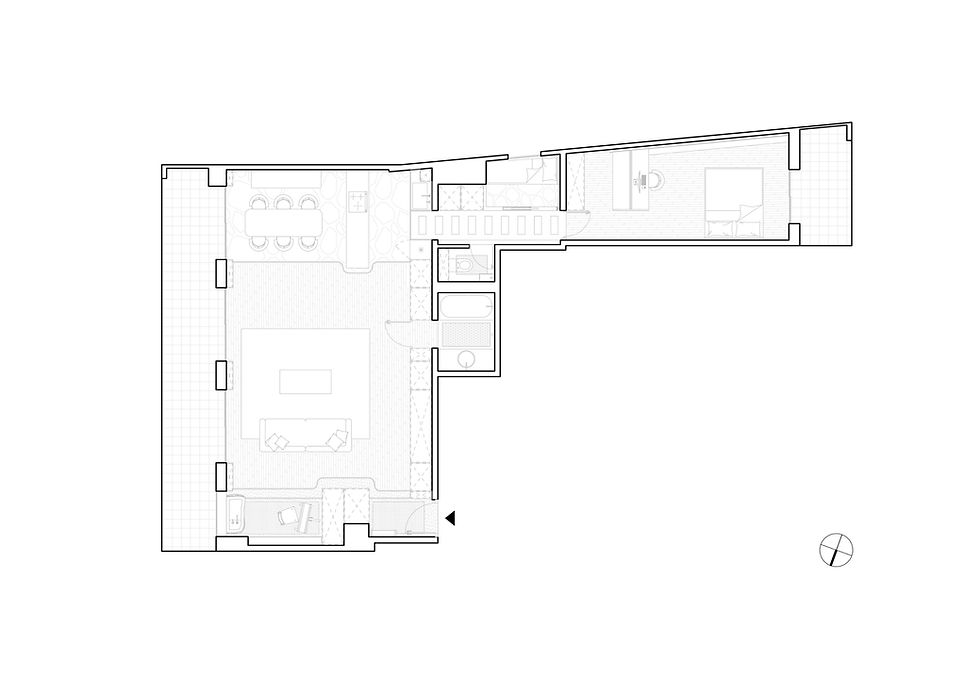
JULE
Lieu : Paris 11ème, France ​
​
Programme : Réaménagement d'un appartement parisien ​
​
Maîtrise d'ouvrage : Privée
​
Maîtrise d'oeuvre : Studio TLA​
​
Surface : 85m2
​
Montant des travaux : À établir
​
État : Étude en cours
bottom of page